Как сделать лофт уютным и изящным: дизайн-проект таунхауса в Москве
Материалы Belinka с удовольствием используют ведущие дизайнеры и архитекторы на своих объектах. Расскажем подробнее об одном из них.
Какое-то время назад на сайте diy.ru мы рассказали читателям о проекте, где были использованы наши материалы, и о том, что даже такой "жесткий" стиль как лофт может стать уютным и изящным.
На интересный проект обратили внимание журналисты-дизайнеры inmyroom.ru и описали его. Дизайн-проект таунхауза, где использовались безопасные и экологичные материалы Belinka, стал Проектом недели по версии портала.
Расскажем подробнее об этом проекте.

Объект: поселок таунхаусов «Кембридж», Москва, Новорижское шоссе.
Хозяева: молодая семья с маленьким ребенком.
Исполнители проекта: студия Loft and Home Алена Комолова (куратор проекта), Ольга Шершенева (дизайнер); Юрий Комолов (техническое воплощение).
Проект таунхауса в стиле лофт: сложность задачи
Дизайнеру предстояла довольно сложная задача. Дело в том, что молодая активная пара, которой принадлежит этот трехэтажный дом в поселке таунхаусов, всегда мечтала о жилье в модном стиле лофт. Вот только теперь появился ребенок, и вдруг возникло желание сделать свой дом уютнее, безопаснее, в том числе и для малыша. Как соединить ощущение заброшенной фабрики, превращенной в жилое пространство, с атмосферой уюта и некоторой изящности, при этом не забывая о безопасных для здоровья ребенка материалах?
Дизайнер Ольга Шершенева нашла следующее решение: смягчить холод стиля лофт элементами арт-деко, подобрать сертифицированные строительные материалы, использовать, в частности, экологически чистые средства и краски Belinka. Изящность арт-деко и надежность материалов сделают лофтовый таунхаус теплым и актуальным жилищем для молодой семьи. Итак, 3 этажа где третий мансардный, 120 кв. м — команда Loft and Home взялась за дело.
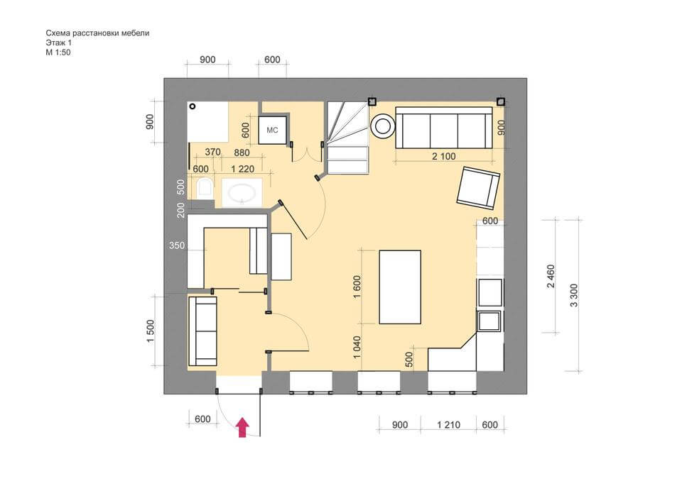
Этаж первый: романтичная прогулка
Мы открываем дверь и оказываемся в кокетливом холле, напоминающем гардеробную комнату в театре начала прошлого века. Торжественные светильники на черной стене, тафта, зеркальные двери — кажется, что вот-вот зайдут дамы в шуршащих платьях.

Гостиная и столовая объединены, тут же притаилась и кухня. Эти зоны как бы наслаиваются друг на друга, например, с помощью керамоплитки под паркет и общего освещения, и тут же как бы разделяются кухонным островом, раскладывающимся в обеденный стол, пушистым ковром у дивана, зонированием потолка, разными аксессуарами.

Дизайнер применила тут сразу несколько интересных находок. Зона кухни компактна и лаконична, при этом есть множество мест хранения, цвет мебели и стен — белый. И если светлая мебель для кухни изначально готова к постоянному мытью, то для белых стен была подобрана специальная износостойкая краска Belinka Latex. Увеличить пространство помогают зеркальные поверхности на стенах, а размещенные на них светильники, отражаясь, превращаются в суперобъемные объекты.


Эти же светильники помещены и между окон — на темном фоне рядом с зеленой травой в горшках они напоминают уличные фонари. Мы как бы и внутри и снаружи, в любимом доме и одновременно на романтичной вечерней прогулке, которая стала самым ярким воспоминанием о дне знакомства молодых людей.
Еще одна романтичная деталь — графитная доска для любовных записок. Хозяева любят находить послания друг от друга каждое утро.
Напоследок упомянем эффектную лофтовскую кирпичную кладку на стене в сочетании с яркими акцентами цветом на обивках мебели, такими характерными для арт-деко.
Тут же, на первом этаже, находится гостевая ванная комната, тактично сдержанная и минималистичная, если бы не ярко-красная дверь и сочно-синие стены.

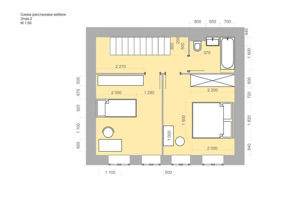
Этаж второй: вход только для своих
На второй этаж мы поднимаемся по необычной консольной лестнице. Индивидуальная подсветка каждой ступени и прозрачная перегородка создают ощущение парения и надежности одновременно. Добавьте сюда черные и белые стены, выкрашенные той же латексной краской, что и на кухне, и получите сочетание простора и стабильности, капли легкомыслия и безопасности, в том числе и для ребенка.
И вот мы на втором этаже. Это зона, где члены семьи имеют возможность спрятаться от внешнего мира, отдохнуть, насладиться общением друг с другом, здесь находятся хозяйская спальня и ванная, и, конечно же, детская комната.
Как раз из этих соображений спальня выполнена скорее в стиле арт-деко, чем лофт. Здесь все мягкое, светлое, стены приглушенного тона, пушистый ковер под ногами. Кровать и тумбы, будуарный столик и люстры полны легкости и изящества.
Те же ощущения царят и в хозяйской ванной. Да, «бетонные» стены и полки присутствуют, но тут же их «согревает» шикарный и яркий узор керамической плитки, напоминающий настенный ковер. И вновь зеркала, безопасная прозрачная перегородка и белые поверхности.
Крохотный хозяин следующей комнаты пока проводит довольно много времени в своей уютной колыбели, да на пеленальном столике. Для его взрослых гостей в комнате предусмотрены удобное кресло, пуф и такой уютный торшер. Постепенно малыш учится различать цвета, пробовать все на вкус, щупать предметы вокруг — дизайнер продумала тут и мягкий гипоаллергенный текстиль, и яркие детали, и безопасные материалы, и даже стены, покрытые сертифицированной для использования в детских помещениях краской. Подрастая, малыш начнет изучать мир, в таком красивом доме он наверняка вырастет художником, но родители могут не переживать о раскрашенных стенах — износостойкая краска выдержит не одну уборку заботливой мамы.

Третий этаж: мир свободы и творчества
Последний этаж таунхауса — единое пространство, располагающее к общению и проявлению творческих способностей. Здесь все очень естественно, мягкий свет, пол, по которому хочется ходить босиком, даже облицовка деревом благодаря обработке средством с натуральным воском Belinka Toplasur, притягивает к себе, как бы предлагает расслабиться. Здесь каждому найдется занятие — книги, мольберт, глобус, рукоделие и настольные игры, да чего уж там, просто поваляться всей семьей на огромном диване всегда приятно.
Актуальный дизайн, комфорт, безопасность, легкость и непринужденность — профессионалы студии Loft and Home отлично справились с работой!


Не бойтесь стиля лофт — при желании он может стать вполне уютным.